Investicinis projektas su statybos leidimu – komercinis objektas
- 365 000 €
- 365 000 €
Bendra informacija
- 21,84 a
Adresas
Atidaryti "Google" žemėlapiuose-
Adresas: Gėlių g. 2, Kauno r.
-
Gyvenvietė: Ramučiai
Aprašymas
Parduodamas komercinis projektas su statybos leidimu, tinkamas prekybai, e. prekybai, paslaugoms, sandėliavimui, biurams ar smulkiai gamybai. Objektas yra šalia prekybos centro „IKI“ Ramučiuose, vietoje, generuojančioje nuolatinius klientų srautus.
Adresas: Gėlių g. 2, Ramučių k., Kauno r.
Sklypo unikalus Nr.: 4400-2103-9934
Vieta ir srautai:
• šalia automagistralės A6 (Kaunas–Jonava–Zarasai–Daugpilis)
• netoli Kauno LEZ, kur dirba ~7000 darbuotojų, planuojama plėtra iki 9500+
• šalia sparčiai augančios gyvenvietės: Ramučiai (~2500 gyv.) ir Karmėlava (~4000 gyv.)
Du patogūs įvažiavimai: iš IKI aikštelės ir atskirai iš Gėlių g. Pastatas projektuojamas A++ energinės klasės, su dideliu elektros pajėgumu ir erdvia parkavimo zona.
Sklypo duomenys:
• plotas – 21,84 a, komercinė paskirtis
• užstatymo plotas – 550 m²
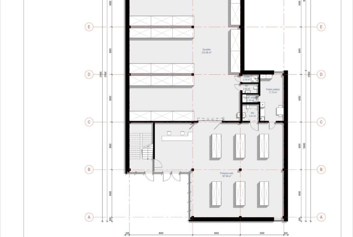
Suprojektuotas pastatas:
• bendras plotas – 760 m²
• energinė klasė – A++
Patalpų išdėstymas:
• sandėlis – 340 m², aukštis 7 m
• prekybos/biuro patalpos – 420 m² (I a. – 210 m², II a. – 210 m²)
Parkavimas:
• 19 automobilių vietų
Inžinerinės sistemos:
• elektra – 60 kW, trifazė, galima didinti
• vanduo, lietaus ir nuotekų tinklai – Kauno rajono infrastruktūra
• šildymas – oras–oras šilumos siurblys
• vėdinimas – 2 mechaninio vėdinimo su rekuperacija sistemos
• LED apšvietimas
• apsaugos ir gaisro signalizacija, vaizdo kameros
• optinis internetas TELIA
Dėl apžiūros ar papildomos informacijos skambinkite tel. 064395072
Išsami informacija
-
Kaina 365 000 €
-
Sklypas 21,84 a
-
Sklypo paskirtis Komercinė
-
Unikalus sklypo numeris 4400-2103-9934
Papildoma informacija
-
Projektas su statybos leidimu Yra
-
Sklypo užstatymo plotas 550 m²
-
Elektra Yra
-
Vandentiekis Yra
-
Nuotekos Yra
-
Galimybė statyti Taip
-
Ypatumai Šalia Ramučių „IKI“ prekybos centro







